KONTRAKTOR & BROKER
Keterangan:
Lokasi:
Beralamat di Jalan Bestari Indah, Ulu Tiram
Keluasan:
Rumah 22x70 manakala tanah 5205 kaki persegi
Tempoh kerja dijalankan:
30 hari
Senarai Kerja:
Membuang sampah
Menebang pokok dan rumput
Membaiki lantai, dinding, siling dan atap
Mengecat
Pendawaian elektrik
Pagar besi
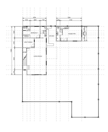
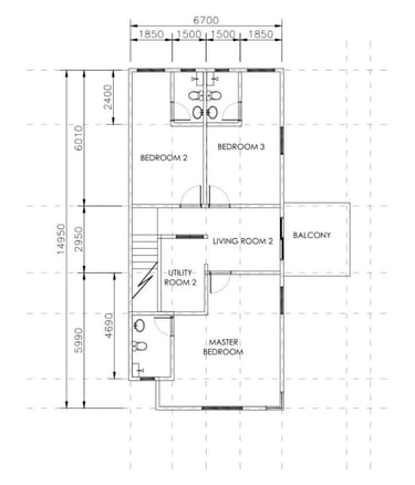
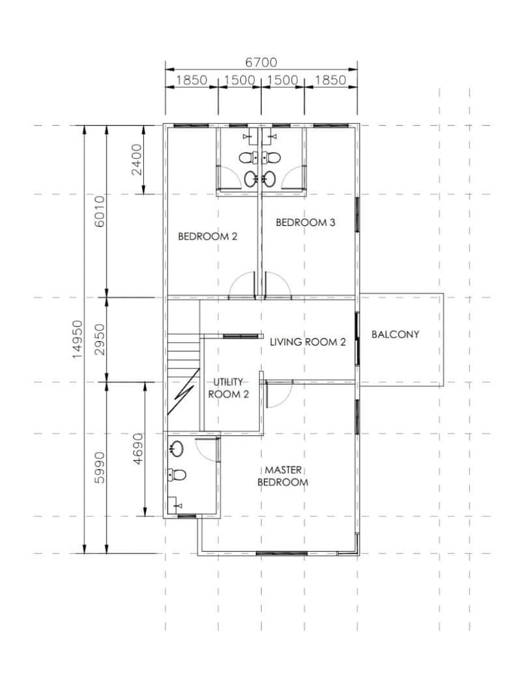
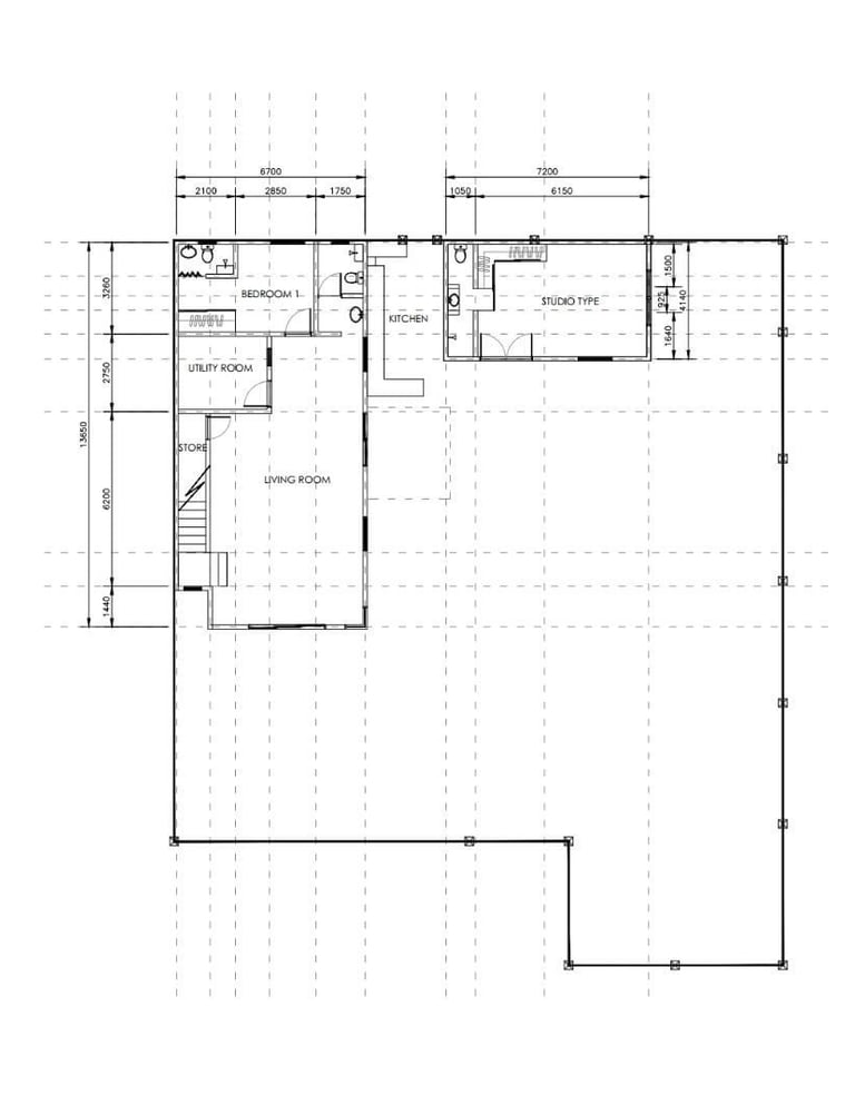
Lukisan pelan rumah
Telah dilantik sebagai kontraktor dan broker untuk melakukan kerja-kerja renovasi rumah dan kemudian menjual rumah ini.









Keadaan rumah yang tidak terurus serta tidak dapat dijual kerana kotor, dipenuhi sampah serta banyak kerosakan









Kerja-kerja penyelenggaraan dan kebersihan sedang dibuat...









